Update 2026-05-09: Packet: Lake Park annexation item @ GLPC 2026-04-27.
In a rare situation, Valdosta planning staff actually recommend denial of
Staff for Valdosta or Lowndes County recommend approval of all the other cases before the Greater Lowndes Planning Commission (GLPC) tomorrow at 5:30 PM.
Packet: 1 Lake Park, 2 Lowndes County, 4 Valdosta cases @ GLPC 2026-04-27
Here is the agenda.
The board packet materials are on the LAKE website, with images of each page below.
Except Lowndes County did not send the Minutes of the previous GLPC meeting. I will remind them.
We do not yet have the packet materials for the Lake Park case, because we had the wrong address for the Lake Park planner. I’ve now sent a request.
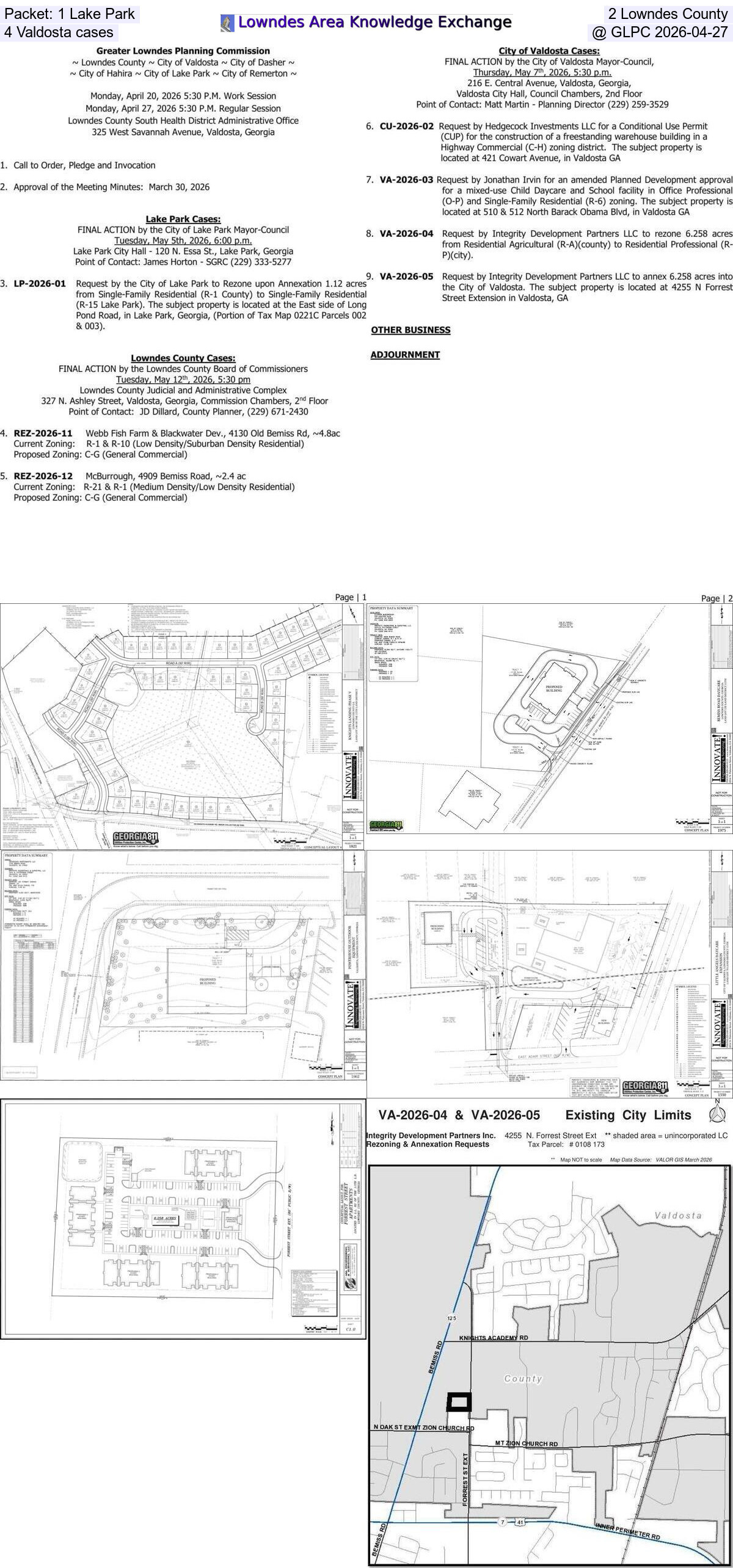
Greater Lowndes Planning Commission
~ Lowndes County ~ City of Valdosta ~ City of Dasher ~
~ City of Hahira ~ City of Lake Park ~ City of Remerton ~Monday, April 20, 2026 5:30 P.M. Work Session
Monday, April 27, 2026 5:30 P.M. Regular Session
Lowndes County South Health District Administrative Office
325 West Savannah Avenue, Valdosta, Georgia
- Call to Order, Pledge and Invocation
- Approval of the Meeting Minutes: March 30, 2026
Lake Park Cases:
FINAL ACTION by the City of Lake Park Mayor-Council
Tuesday, May 5th, 2026, 6:00 p.m.
Lake Park City Hall – 120 N. Essa St., Lake Park, Georgia
Point of Contact: James Horton – SGRC (229) 333-5277- LP-2026-01 Request by the City of Lake Park to Rezone upon Annexation 1.12 acres
from Single-Family Residential (R-1 County)
to Single-Family Residential (R-15 Lake Park).
The subject property is located at the East side of Long Pond Road, in Lake Park, Georgia,
(Portion of Tax Map 0221C Parcels 002 & 003).Lowndes County Cases:
FINAL ACTION by the Lowndes County Board of Commissioners
Tuesday, May 12″, 2026, 5:30 pm
Lowndes County Judicial and Administrative Complex
327 N. Ashley Street, Valdosta, Georgia, Commission Chambers, 2nd Floor
Point of Contact: JD Dillard, County Planner, (229) 671-2430- REZ-2026-11 Webb Fish Farm & Blackwater Dev., 4130 Old Bemiss Rd, ~4.8ac
Current Zoning: R-1 & R-10 (Low Density/Suburban Density Residential)
Proposed Zoning: C-G (General Commercial)- REZ-2026-12 McBurrough, 4909 Bemiss Road, ~2.4 ac
Current Zoning: R-21 & R-1 (Medium Density/Low Density Residential)
Proposed Zoning: C-G (General Commercial)City of Valdosta Cases:
FINAL ACTION by the City of Valdosta Mayor-Council,
Thursday, May 7″, 2026, 5:30 p.m.
216 E. Central Avenue, Valdosta, Georgia,
Valdosta City Hall, Council Chambers, 2nd Floor
Point of Contact: Matt Martin – Planning Director (229) 259-3529- CU-2026-02 Request by Hedgecock Investments LLC for a Conditional Use Permit (CUP)
for the construction of a freestanding warehouse building
in a Highway Commercial (C-H) zoning district.
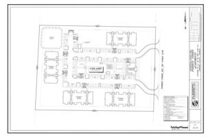
The subject property is located at 421 Cowart Avenue, in Valdosta GA- VA-2026-03 Request by Jonathan Irvin for an amended Planned Development approval
for a mixed-use Child Daycare and School facility
in Office Professional (O-P)
and Single-Family Residential (R-6) zoning.
The subject property is located at 510 & 512 North Barack Obama Blvd, in Valdosta GA- VA-2026-04 Request by Integrity Development Partners LLC to rezone 6.258 acres
from Residential Agricultural (R-A)(county)
to Residential Professional (R-P)(city).- VA-2026-05 Request by Integrity Development Partners LLC to annex 6.258 acres
into the City of Valdosta.
The subject property is located at 4255 N Forrest Street Extension in Valdosta, GAOTHER BUSINESS
ADJOURNMENT
Lake Park and Lowndes County Cases
PDF
-jsq
Investigative reporting costs money, for open records requests, copying, web hosting, gasoline, and cameras, and with sufficient funds we can pay students to do further research. You can donate to LAKE today!
http://www.l-a-k-e.org/blog/donate
4. REZ-2026-11 Webb Fish Farm & Blackwater Dev., 4130 Old Bemiss Rd, ~4.8ac
to repurpose the old Webb Fish Farm buildings and allow for new commercial opportunities on ~4.8ac.
PDF
Staff recomments approval with 2 conditions
PDF
COMMERCIAL, OFFICE, AND INSTITUTIONAL
PDF
REVISION SURVEY for K QUATRO DEVELOPMENT LLC
PDF
Survey and layout: Knights Landing Phase V
PDF
Rezoning application for 0145B 094B
PDF
Signed: Jackson R. Langdale
PDF
Rezoning application for 0145B 094A
PDF
5. REZ-2026-12 McBurrough, 4909 Bemiss Road, ~2.4 ac
to develop a child care learning facility; one condition
PDF
COMMERCIAL, OFFICE, AND INSTITUTIONAL ZONING DISTRICTS
PDF
Also Section Outdoor Storage.
PDF
Also Section Meeting or Event P| P
PDF
80,000:saft: Section 5.05.00)
PDF
Section 4.03.23) Studios, such as
PDF
Section 4.03.04) unolesale
PDF
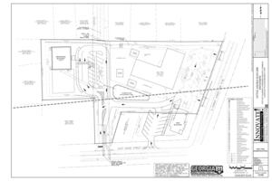
6. CU-2026-02 Hedgecock Investments LLC, Conditional Use Permit (CUP)
to construct a one-story 4,320-sf freestanding warehouse building to store equipment (indoors) for their “Powerhouse Outdoor Equipment” business located nearby at 2122 Bemiss Road. Staff recommends denial.
PDF
Planning Analysis & Property Information
PDF
Development Review Comments
PDF
CUP application by William D. Kent, Innovate! Enginneering & Surveying
PDF
CONCEPT PLAN: POWERHOUSE OUTDOOR EQUIPMENT
PDF
NORTH ELEVATION and SOUTH ELEVATION
PDF
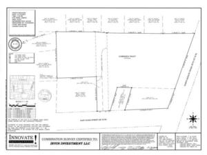
7. VA-2026-03 Jonathan Irvin, an amended Planned Development approval
a minor amendment to condition #1 of the previously-approved planned development to remove the restriction that approval shall be granted in the name of the applicant only.
PDF
Staff recommends approval with 6 remaining conditions
PDF
Planning Analysis & Property Information
PDF
Proposed Deviations from “standard development regulations”
PDF
Proposed Deviations from “standard development regulations”
PDF
Development Review Comments
PDF
Letter of Intent from Jonathan Irvin
PDF
CERTIFICATE OF LAND USE DECISION, CITY OF VALDOSTA, GEORGIA
PDF
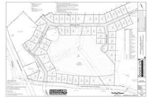
8. VA-2026-04 Integrity Development Partners LLC, 6.258 acres, (R-A)(county) to (R-P)(city).
to develop the property with a 72-unit apartment complex that utilizes tax credit housing and will be similar in design to the Freedom Heights and Harvest Station developments by the same applicant. Staff recommends approval.
PDF
Planning Analysis & Property Information
PDF
Supplemental Regulations in the LDR Applicable to the Proposal
PDF
Development Review Comments
PDF
Rezoning request from Vallotton Farms Inc.
PDF
LETTER of AUTHORIZATION from Robert Vallotton for Integrity Development Partners LLC
PDF
EXEMPT PLAT OF SURVEY FOR: VALLOTTON FARMS, INC.
PDF
9. VA-2026-05 Request by Integrity Development Partners LLC to annex 6.258 acres
The applicant is seeking annexation so that the property will have access to City utilities as well as other City services.
PDF
Planning Analysis & Property Information
PDF
Application for Rezoning and/or Annexation Property Owner: Vallotton Farms, Inc. Rezoning Request for: Integrity Development Partners, LLC
PDF
LETTER of AUTHORIZATION from Robert Vallotton for Integrity Development Partners LLC
PDF
Short Link:
![[City of Valdosta Cases]](http://www.l-a-k-e.org/govt/glpc/2026-04-27--glpc-packet/GLPC-Agenda-April-2026-0002.jpg)
![[Page 4]](http://www.l-a-k-e.org/govt/glpc/2026-04-27--glpc-packet/small/REZ-2026-11-GLPC-Packet-0004.jpg)
![[Page 5]](http://www.l-a-k-e.org/govt/glpc/2026-04-27--glpc-packet/small/REZ-2026-11-GLPC-Packet-0005.jpg)
![[Page 6]](http://www.l-a-k-e.org/govt/glpc/2026-04-27--glpc-packet/small/REZ-2026-11-GLPC-Packet-0006.jpg)
![[Page 7]](http://www.l-a-k-e.org/govt/glpc/2026-04-27--glpc-packet/small/REZ-2026-11-GLPC-Packet-0007.jpg)
![[Page 8]](http://www.l-a-k-e.org/govt/glpc/2026-04-27--glpc-packet/small/REZ-2026-11-GLPC-Packet-0008.jpg)
![[Page 9]](http://www.l-a-k-e.org/govt/glpc/2026-04-27--glpc-packet/small/REZ-2026-11-GLPC-Packet-0009.jpg)
![[Signed: Jackson R. Langdale]](http://www.l-a-k-e.org/govt/glpc/2026-04-27--glpc-packet/small/REZ-2026-11-GLPC-Packet-0015.jpg)
![[Zoning Location Map]](http://www.l-a-k-e.org/govt/glpc/2026-04-27--glpc-packet/small/REZ-2026-11-GLPC-Packet-0016.jpg)
![[Future Development Map]](http://www.l-a-k-e.org/govt/glpc/2026-04-27--glpc-packet/small/REZ-2026-11-GLPC-Packet-0017.jpg)
![[WRPDO Site Map]](http://www.l-a-k-e.org/govt/glpc/2026-04-27--glpc-packet/small/REZ-2026-11-GLPC-Packet-0018.jpg)
![[= = Section 4.03.18 or]](http://www.l-a-k-e.org/govt/glpc/2026-04-27--glpc-packet/small/REZ-2026-12-GLPC-Packet-0005.jpg)
![[CONCEPT PLAN: BEMISS ROAD DAYCARE]](http://www.l-a-k-e.org/govt/glpc/2026-04-27--glpc-packet/small/REZ-2026-12-GLPC-Packet-0009.jpg)
![[Zoning Location Map]](http://www.l-a-k-e.org/govt/glpc/2026-04-27--glpc-packet/small/REZ-2026-12-GLPC-Packet-0010.jpg)
![[Future Development Map]](http://www.l-a-k-e.org/govt/glpc/2026-04-27--glpc-packet/small/REZ-2026-12-GLPC-Packet-0011.jpg)
![[WRPDO Site Map]](http://www.l-a-k-e.org/govt/glpc/2026-04-27--glpc-packet/small/REZ-2026-12-GLPC-Packet-0012.jpg)
![[Comprehensive Plan Issues]](http://www.l-a-k-e.org/govt/glpc/2026-04-27--glpc-packet/small/CU-2026-02-agenda-item-packet-GLPC-0003.jpg)
![[Zoning Location Map]](http://www.l-a-k-e.org/govt/glpc/2026-04-27--glpc-packet/small/CU-2026-02-agenda-item-packet-GLPC-0005.jpg)
![[Future Development Map]](http://www.l-a-k-e.org/govt/glpc/2026-04-27--glpc-packet/small/CU-2026-02-agenda-item-packet-GLPC-0006.jpg)
![[Aerial Location Map]](http://www.l-a-k-e.org/govt/glpc/2026-04-27--glpc-packet/small/CU-2026-02-agenda-item-packet-GLPC-0007.jpg)
![[EAST ELEVATION and WEST ELEVATION]](http://www.l-a-k-e.org/govt/glpc/2026-04-27--glpc-packet/small/CU-2026-02-agenda-item-packet-GLPC-0011.jpg)
![[Mockup image]](http://www.l-a-k-e.org/govt/glpc/2026-04-27--glpc-packet/small/CU-2026-02-agenda-item-packet-GLPC-0012.jpg)
![[Zoning Location Map]](http://www.l-a-k-e.org/govt/glpc/2026-04-27--glpc-packet/small/VA-2026-03-agenda-item-packet-GLPC-0007.jpg)
![[Future Development Map]](http://www.l-a-k-e.org/govt/glpc/2026-04-27--glpc-packet/small/VA-2026-03-agenda-item-packet-GLPC-0008.jpg)
![[Aerial Location Map]](http://www.l-a-k-e.org/govt/glpc/2026-04-27--glpc-packet/small/VA-2026-03-agenda-item-packet-GLPC-0009.jpg)
![[Page 12]](http://www.l-a-k-e.org/govt/glpc/2026-04-27--glpc-packet/small/VA-2026-03-agenda-item-packet-GLPC-0012.jpg)
![[COMBINATION SURVEY CERTIFIED TO: IRVIN INVESTMENT LLC]](http://www.l-a-k-e.org/govt/glpc/2026-04-27--glpc-packet/small/VA-2026-03-agenda-item-packet-GLPC-0013.jpg)
![[CONCEPT PLAN: Little Angels Daycare Expansion]](http://www.l-a-k-e.org/govt/glpc/2026-04-27--glpc-packet/small/VA-2026-03-agenda-item-packet-GLPC-0014.jpg)
![[Comprehensive Plan Issues]](http://www.l-a-k-e.org/govt/glpc/2026-04-27--glpc-packet/small/VA-2026-04-agenda-item-packet-GLPC-0003.jpg)
![[Zoning Location Map]](http://www.l-a-k-e.org/govt/glpc/2026-04-27--glpc-packet/small/VA-2026-04-agenda-item-packet-GLPC-0008.jpg)
![[Future Development Map]](http://www.l-a-k-e.org/govt/glpc/2026-04-27--glpc-packet/small/VA-2026-04-agenda-item-packet-GLPC-0009.jpg)
![[Aerial Location Map]](http://www.l-a-k-e.org/govt/glpc/2026-04-27--glpc-packet/small/VA-2026-04-agenda-item-packet-GLPC-0010.jpg)
![[CONCEPTUAL LAYOUT FOR: FORREST STREET APARTMENTS]](http://www.l-a-k-e.org/govt/glpc/2026-04-27--glpc-packet/small/VA-2026-04-agenda-item-packet-GLPC-0012.jpg)
![[Rendering: Proposed 72-Unit Apartment Community]](http://www.l-a-k-e.org/govt/glpc/2026-04-27--glpc-packet/small/VA-2026-04-agenda-item-packet-GLPC-0013.jpg)
![[Zoning Location Map]](http://www.l-a-k-e.org/govt/glpc/2026-04-27--glpc-packet/small/VA-2026-05-agenda-item-packet-GLPC-0003.jpg)
![[Application for Annexation]](http://www.l-a-k-e.org/govt/glpc/2026-04-27--glpc-packet/small/VA-2026-05-agenda-item-packet-GLPC-0006.jpg)
![[Page 7]](http://www.l-a-k-e.org/govt/glpc/2026-04-27--glpc-packet/small/VA-2026-05-agenda-item-packet-GLPC-0007.jpg)
![[Page 8]](http://www.l-a-k-e.org/govt/glpc/2026-04-27--glpc-packet/small/VA-2026-05-agenda-item-packet-GLPC-0008.jpg)
![[Page 9]](http://www.l-a-k-e.org/govt/glpc/2026-04-27--glpc-packet/small/VA-2026-05-agenda-item-packet-GLPC-0009.jpg)
![[Zoning Location Map]](http://www.l-a-k-e.org/govt/glpc/2026-04-27--glpc-packet/small/VA-2026-05-agenda-item-packet-GLPC-0010.jpg)
![[Future Development Map]](http://www.l-a-k-e.org/govt/glpc/2026-04-27--glpc-packet/small/VA-2026-05-agenda-item-packet-GLPC-0011.jpg)
![[Aerial Location Map]](http://www.l-a-k-e.org/govt/glpc/2026-04-27--glpc-packet/small/VA-2026-05-agenda-item-packet-GLPC-0012.jpg)
![[EXEMPT PLAT OF SURVEY FOR: VALLOTTON FARMS, INC.]](http://www.l-a-k-e.org/govt/glpc/2026-04-27--glpc-packet/small/VA-2026-05-agenda-item-packet-GLPC-0013.jpg)