Lowndes Area Knowledge Exchange (LAKE)
Comprehensive Plan Issues
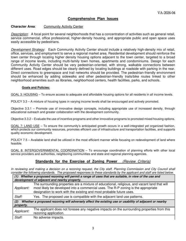
8. VA-2026-04 Integrity Development Partners LLC, 6.258 acres, (R-A)(county) to (R-P)(city).
Packet: 1 Lake Park, 2 Lowndes County, 4 Valdosta @ GLPC
27 April 2026
bigger
PDF
Photographs
by
Lowndes Area Knowledge Exchange (LAKE)
,
licensed by a
Creative Commons Attribution-Share Alike 3.0 U.S. License
.
Lowndes Area Knowledge Exchange (LAKE)