Lowndes Area Knowledge Exchange (LAKE)
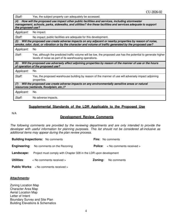
Development Review Comments
6. CU-2026-02 Hedgecock Investments LLC, Conditional Use Permit (CUP)
Packet: 1 Lake Park, 2 Lowndes County, 4 Valdosta @ GLPC
27 April 2026
bigger
PDF
Photographs
by
Lowndes Area Knowledge Exchange (LAKE)
,
licensed by a
Creative Commons Attribution-Share Alike 3.0 U.S. License
.
Lowndes Area Knowledge Exchange (LAKE)