Update 2026-02-08: Videos: Valdosta downtown multi-family residential development and office and storage in Lowndes County @ GLPC 2026-01-26.
Not even the agenda is on lowndescounty.com for Monday’s Planning Commission meeting, much less any of the board packet materials.
You can see all of those, plus the minutes from the previous meeting, here on the LAKE website.
But why doesn’t Lowndes County put these materials on its own website, so the taxpaying and voting public can see them?
Maybe you’d like to ask your Lowndes County Commissioners. They have a Work Session Monday morning and a voting Regular Session Tuesday evening with Citizens Wishing to Be Heard.
Why does it take multiple open LAKE open records requests and further email interactions to pry these materials out of Lowndes County?
It’s not just the materials for the Greater Lowndes Planning Commission (GLPC) that are not on the county’s website. While the agenda and one-page agenda sheets for the Lowndes County Commission are on the county’s website, none of the rest of their board packet materials are.
Why should a private media firm have to pry these materials out of the county?
I’m not blaming the county staff. They do what they are told to do by the County Commissioners.
I’m not blaming the Planning Commissioners. They are merely an advisory body.
So please ask your Lowndes County Commissioners why they do not publish important materials so the public can see what they the Commissioners are using to make decisions?
Packet: Valdosta downtown multi-family residential @ GLPC 2026-01-26, Office & storage in Lowndes County; None of this on lowndescounty.com
The Valdosta item is for a dense residential development in an appropriate city character area, with appropriate conditions recommended by staff. It’s the opposite of sprawl. Seems like a good idea to me.
I’m less clear on the proposed office and storage facility in Lowndes County, REZ-2026-03. It is not in an appropriate Character Area. It has noise and lighting concerns. It crosses a county sewer force main and a natural gas pipeline. It crosses a creek that feeds into Franks Creek into the Little River. The staff-recommended conditions seem like weak tea.
We only have the board materials for this third county case because LAKE insisted on the county honoring the Georgia Open Records Act (GORA). The materials for this city case and this county case are on the LAKE website, along with the agenda and the minutes from the previous GLPC meeting.
For the materials for the other two county cases, see the previous post:
http://www.l-a-k-e.org/blog/?p=25459
Here is the GLPC agenda, which is still not on the county’s own website:
Greater Lowndes Planning Commission
~ Lowndes County ~ City of Valdosta ~ City of Dasher ~
~ City of Hahira ~ City of Lake Park ~ City of Remerton ~Tuesday, January 20, 2026 5:30 P.M. Work Session
Monday, January 26, 2026 5:30 P.M. Regular Session
Lowndes County South Health District Administrative Office 325 West Savannah Avenue, Valdosta, Georgia
- Call to Order, Pledge and Invocation
- Approval of the Meeting Minutes: November 24, 2025
City of Valdosta Case:
FINAL ACTION by the City of Valdosta Mayor-Council, 216 E. Central Avenue,
Valdosta, Georgia, Valdosta City Hall, Council Chambers, 2nd Floor
Thursday, February 5nd, 2026, 5:30 p.m.
Point of Contact: Matt Martin – Planning Director (229) 259-3529- CU-2026-01 Daniel Bayman (111 W Hill Avenue)
CUP for a Multi-Family Residential development in a Downtown Commercial (C-D) zoning districtLowndes County Cases:
FINAL ACTION by the Lowndes County Board of Commissioners, 327 N. Ashley Street,
Valdosta, Georgia, Lowndes County Judicial and Administrative Complex Commission
Chambers, 24 Floor, Tuesday, February 10, 2026, 5:30 pm
Point of Contact: JD Dillard, County Planner, (229) 671-2430- REZ-2026-01, Bryttanee Howard, Staten Road, 0103-066a, ~5.7 acres
Current Zoning: E-A (Estate Agricultural)
Proposed Zoning: R-A (Residential Agricultural)- REZ-2026-02: Bullard Property, 7270 Old Valdosta Road, 0027 019a, ~1.0 acre
Current Zoning: E-A (Estate Agricultura
Proposed Zoning: R-1 (Low Density Residential)- REZ-2026-03: Jose and Angelica Villanueva, 6201 Union Road, 0052-125b, ~6.0 acres
Current Zoning: E-A (Estate Agricultural)
Proposed Zoning: C-G (General Commercial)OTHER BUSINESS
ADJOURNMENT
Images of the rest of the packet materials are below.
-jsq
Investigative reporting costs money, for open records requests, copying, web hosting, gasoline, and cameras, and with sufficient funds we can pay students to do further research. You can donate to LAKE today!
http://www.l-a-k-e.org/blog/donate
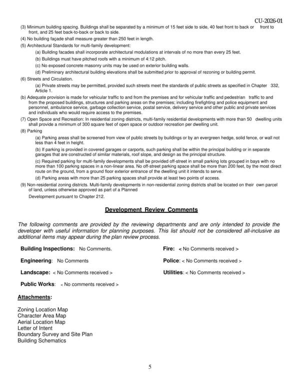
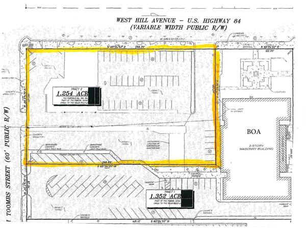
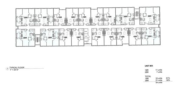
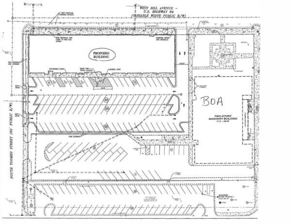
CU-2026-01, Daniel Bayman, 1.25 acres, 111 West Hill Avenue
for the construction of a Multi-Family Residential development in a Downtown Commercial (C-D) zoning district.
PDF
Planning Analysis & Property Information
PDF
Supplemental Standards of the LDR Applicable to the Proposed Use
PDF
Development Review Comments
PDF
Letter of Intent from Daniel Bayman
PDF
Photo: Lee Office Equipment Co.
PDF
Map: Typical Floor Concept
PDF
6. REZ-2026-03: Jose and Angelica Villanueva, 6201 Union Road, 0052-125b, ~6.0 acres
to allow for a proposed office and storage facilitiy on the subject property for Universal Roofing.
PDF
Staff Recommendation: 2. Approve with Conditions
PDF
COMMERCIAL, OFFICE, AND INSTITUTIONAL ZONING DISTRICTS
PDF
Conceptual Site Plan for Angelica Villanueva
PDF
GLPC-Minutes-2025-01-24
Short Link:
![[GLPC Agenda January 2026]](http://www.l-a-k-e.org/govt/glpc/2026-01-26--glpc-packet/GLPC-Agenda-January-2026-0001.jpg)
![[Comprehensive Plan Issues]](http://www.l-a-k-e.org/govt/glpc/2026-01-26--glpc-packet/CU-2026-01-agenda-item-packet--GLPC-0003.jpg)
![[Zoning Location Map]](http://www.l-a-k-e.org/govt/glpc/2026-01-26--glpc-packet/CU-2026-01-agenda-item-packet--GLPC-0006.jpg)
![[Future Development Map]](http://www.l-a-k-e.org/govt/glpc/2026-01-26--glpc-packet/CU-2026-01-agenda-item-packet--GLPC-0007.jpg)
![[Aerial Location Map]](http://www.l-a-k-e.org/govt/glpc/2026-01-26--glpc-packet/CU-2026-01-agenda-item-packet--GLPC-0008.jpg)
![[Survey Map]](http://www.l-a-k-e.org/govt/glpc/2026-01-26--glpc-packet/CU-2026-01-agenda-item-packet--GLPC-0010.jpg)
![[Survey: Proposed Building]](http://www.l-a-k-e.org/govt/glpc/2026-01-26--glpc-packet/CU-2026-01-agenda-item-packet--GLPC-0011.jpg)
![[Photo: Another elevation]](http://www.l-a-k-e.org/govt/glpc/2026-01-26--glpc-packet/CU-2026-01-agenda-item-packet--GLPC-0013.jpg)
![[Photo: And another]](http://www.l-a-k-e.org/govt/glpc/2026-01-26--glpc-packet/CU-2026-01-agenda-item-packet--GLPC-0014.jpg)
![[Map: Level 1 Concept]](http://www.l-a-k-e.org/govt/glpc/2026-01-26--glpc-packet/CU-2026-01-agenda-item-packet--GLPC-0015.jpg)
![[Page 4]](http://www.l-a-k-e.org/govt/glpc/2026-01-26--glpc-packet/REZ-2026-03-GLPC-Packet-0004.jpg)
![[Page 5]](http://www.l-a-k-e.org/govt/glpc/2026-01-26--glpc-packet/REZ-2026-03-GLPC-Packet-0005.jpg)
![[Page 6]](http://www.l-a-k-e.org/govt/glpc/2026-01-26--glpc-packet/REZ-2026-03-GLPC-Packet-0006.jpg)
![[Page 7]](http://www.l-a-k-e.org/govt/glpc/2026-01-26--glpc-packet/REZ-2026-03-GLPC-Packet-0007.jpg)
![[Page 8]](http://www.l-a-k-e.org/govt/glpc/2026-01-26--glpc-packet/REZ-2026-03-GLPC-Packet-0008.jpg)
![[Page 9]](http://www.l-a-k-e.org/govt/glpc/2026-01-26--glpc-packet/REZ-2026-03-GLPC-Packet-0009.jpg)
![[Zoning Location Map]](http://www.l-a-k-e.org/govt/glpc/2026-01-26--glpc-packet/REZ-2026-03-GLPC-Packet-0011.jpg)
![[Future Development Map]](http://www.l-a-k-e.org/govt/glpc/2026-01-26--glpc-packet/REZ-2026-03-GLPC-Packet-0012.jpg)
![[WRPDO Site Map]](http://www.l-a-k-e.org/govt/glpc/2026-01-26--glpc-packet/REZ-2026-03-GLPC-Packet-0013.jpg)
![[Page 1]](http://www.l-a-k-e.org/govt/glpc/2026-01-26--glpc-packet/2025-11-24-GLPC-Minutes-DRAFT-0001.jpg)
![[Page 2]](http://www.l-a-k-e.org/govt/glpc/2026-01-26--glpc-packet/2025-11-24-GLPC-Minutes-DRAFT-0002.jpg)
![[Page 3]](http://www.l-a-k-e.org/govt/glpc/2026-01-26--glpc-packet/2025-11-24-GLPC-Minutes-DRAFT-0003.jpg)
![[Page 4]](http://www.l-a-k-e.org/govt/glpc/2026-01-26--glpc-packet/2025-11-24-GLPC-Minutes-DRAFT-0004.jpg)
![[Page 5]](http://www.l-a-k-e.org/govt/glpc/2026-01-26--glpc-packet/2025-11-24-GLPC-Minutes-DRAFT-0005.jpg)
![[Page 6]](http://www.l-a-k-e.org/govt/glpc/2026-01-26--glpc-packet/2025-11-24-GLPC-Minutes-DRAFT-0006.jpg)
![[Page 7]](http://www.l-a-k-e.org/govt/glpc/2026-01-26--glpc-packet/2025-11-24-GLPC-Minutes-DRAFT-0007.jpg)
![[Page 8]](http://www.l-a-k-e.org/govt/glpc/2026-01-26--glpc-packet/2025-11-24-GLPC-Minutes-DRAFT-0008.jpg)
Pingback: Packet: 3 Lowndes County rezonings @ GLPC 2026-01-20 | On the LAKE front