owl LAKE

Packet: Valdosta downtown multi-family residential development and office and storage in Lowndes County @ GLPC 2026-01-26 [Up]

Investigative reporting costs money, for open records requests, copying, web hosting, gasoline, and cameras, and with sufficient funds we can pay students to do further research. You can donate to LAKE today!

MMM

[Packet: Valdosta downtown multi-family residential @ GLPC 2026-01-26, Office & storage in Lowndes County; None of this on lowndescounty.com]
Packet: Valdosta downtown multi-family residential @ GLPC 2026-01-26, Office & storage in Lowndes County; None of this on lowndescounty.com

GLPC-Agenda-2026-01-26

[GLPC Agenda January 2026]
GLPC Agenda January 2026
PDF

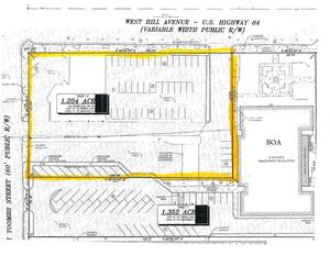
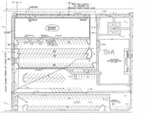
CU-2026-01, Daniel Bayman, 1.25 acres, 111 West Hill Avenue

[for the construction of a Multi-Family Residential development in a Downtown Commercial (C-D) zoning district.]
for the construction of a Multi-Family Residential development in a Downtown Commercial (C-D) zoning district.
PDF

6. REZ-2026-03: Jose and Angelica Villanueva, 6201 Union Road, 0052-125b, ~6.0 acres

[to allow for a proposed office and storage facilitiy on the subject property for Universal Roofing.]
to allow for a proposed office and storage facilitiy on the subject property for Universal Roofing.
PDF

GLPC-Minutes-2025-01-24

[Page 1]
Page 1
PDF