Packet: Rezonings, Dogs, Roads, and Subdivisions @ LCC 2025-10-13

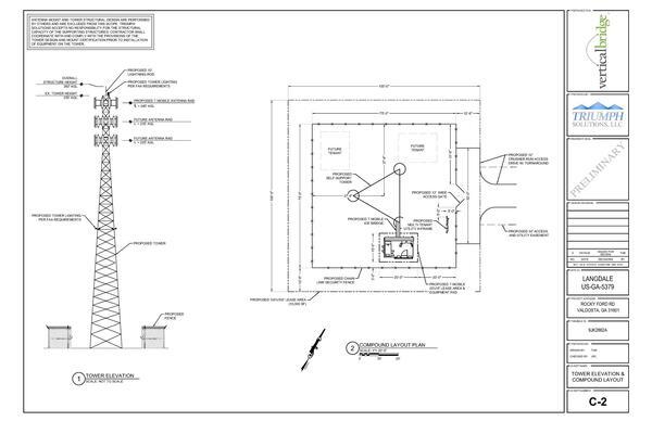
The Planning Commission unanimously recommended approval for both rezonings, but the communications tower rezoning on Rocky Ford Road near Watkins Road has acquired a petition and a lengthy letter of opposition as it goes to the Lowndes County Commission.

The commercial rezoning on Stewart Circle does not seem to have any opposition.

[Collage, Packet @ LCC 2025-10-13]
Collage, Packet @ LCC 2025-10-13

The county finally has an agreement to sign with GDOT and CSX about the Old Quitman Highway bridge, which will be paid for and organized by GDOT.

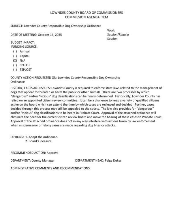
The county thinks it’s ready to sign the Lowndes County Responsible Dog Ownership Ordinance, “Approval of the attached ordinance will eliminate the need for the current citizen review board and move the hearing of these cases to Probate Court.”

There’s a Purchase of Wetland Credits for the Twin Lakes Road Paving Project.

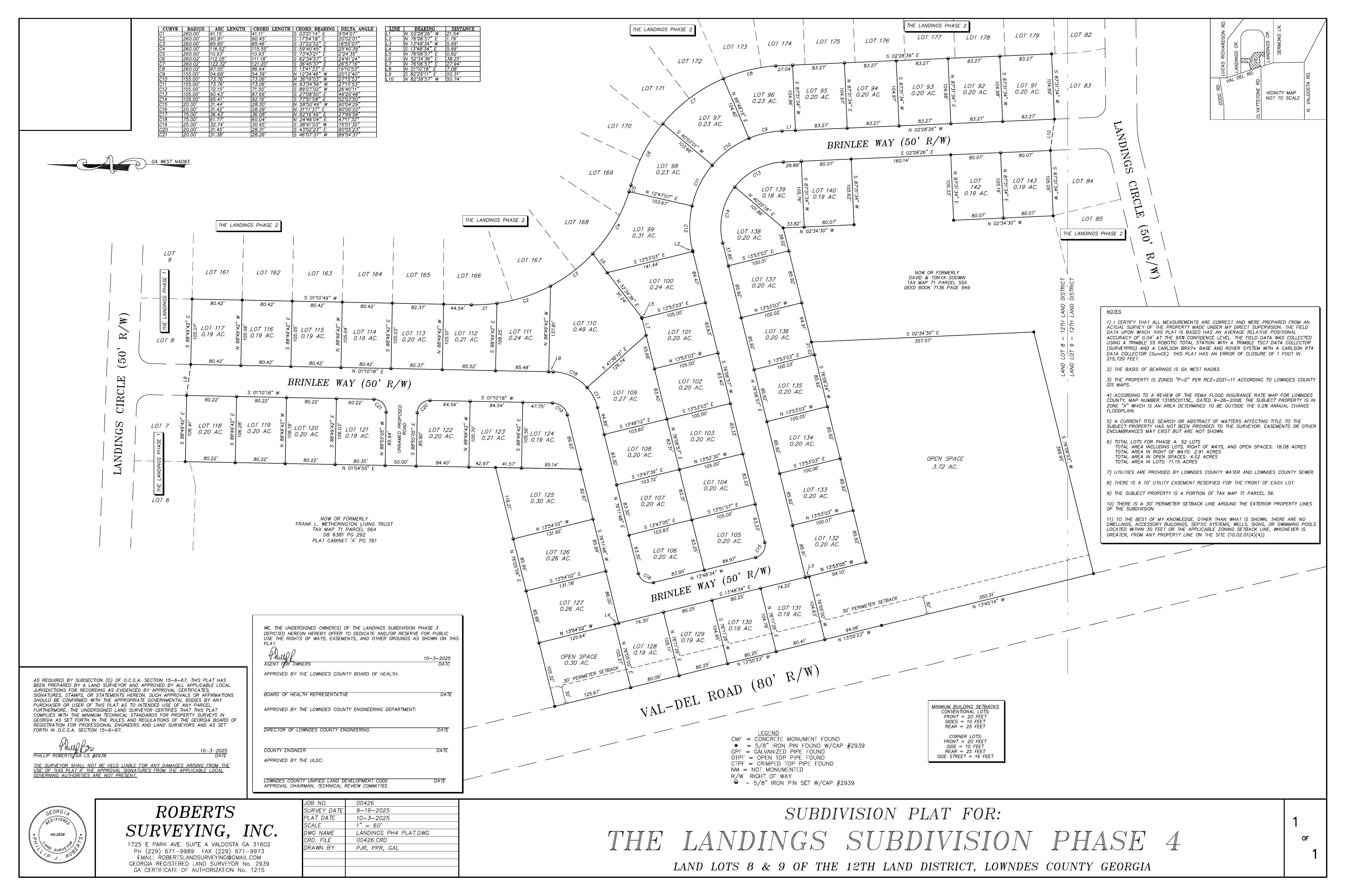
And one of the usual: Acceptance of Infrastructure for The Landings Phase IV, which is 52 lots off of Val Del Road on Landings Circle and Brinlee Way.

Here is the agenda. The board packet, received in response to a LAKE open records request, is on the LAKE website.

See also the LAKE videos of the preceding meeting of the Greater Lowndes Planning Commission (GLPC).

LOWNDES COUNTY BOARD OF COMMISSIONERS
PROPOSED AGENDA
WORK SESSION, TUESDAY, OCTOBER 14, 2025, 8:30 a.m.
REGULAR SESSION, TUESDAY, OCTOBER 14, 2025, 5:30 p.m.
327 N. Ashley Street – 2nd Floor

  1. Call to Order
  2. Invocation
  3. Pledge of Allegiance to the Flag
  4. Minutes for Approval
    1. Work Session – September 22, 2025 & Regular Session – September 23, 2025
  5. Public Hearing
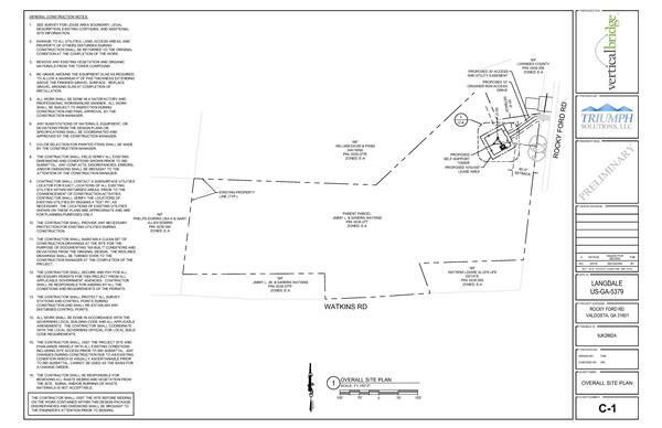
    1. TWR-2025-01 New 260' Telecommunications Tower

      Documents:TWR-2025-01 New 260 Telecommunications Tower.pdf

    2. REZ-2025-15 Stewart Circle ~13.6ac, 3923, 4025 & 4051 Stewart Circle, C-C & R-1 to C-H, County Utilities

      Documents:REZ-2025-15 Stewart Circle.pdf

  6. For Consideration
    1. Lowndes County Responsible Dog Ownership Ordinance

      Documents:Lowndes County Responsible Dog Ownership Ordinance.pdf

    2. Purchase of Wetland Credits for Twin Lakes Road Paving Project

      Documents:Purchase of Wetland Credits for Twin Lakes Road Paving Project.pdf

    3. Agreement for PI No. 0015614 CR 136/Old Quitman Road @ CSX #637487Y

      Documents:Agreement for PI No. 0015614 CR 136 Old Quitman Road.pdf

    4. Acceptance of Infrastructure for The Landings Phase IV

      Documents:Acceptance of Infrastructure for The Landings Phase IV.pdf

  7. Reports – County Manager
  8. Citizens Wishing to be Heard-Please State Your Name and Address
  9. Adjournment

[Rezonings, Dogs, Roads, and Subdivisions]
Rezonings, Dogs, Roads, and Subdivisions
PDF

[Adjournment]
Adjournment
PDF

-jsq

Investigative reporting costs money, for open records requests, copying, web hosting, gasoline, and cameras, and with sufficient funds we can pay students to do further research. You can donate to LAKE today!
http://www.l-a-k-e.org/blog/donate

TWR-2025-01 New 260′ Telecommunications Tower

[to construct a new ~260-foot telecommunications tower on a 10,000sf leased area on Rocky Ford Road near Watkins Road.]
to construct a new ~260-foot telecommunications tower on a 10,000sf leased area on Rocky Ford Road near Watkins Road.
PDF

[RECOMMENDED ACTION: Approve]
RECOMMENDED ACTION: Approve
PDF

[Overall Site Plan]
Overall Site Plan
PDF

[Tower Elevation & Compound Layout]
Tower Elevation & Compound Layout
PDF

[Objections from Kim Lindsey (Watkins)]
Objections from Kim Lindsey (Watkins)
PDF

[Page 8]
Page 8
PDF

[25 verified sigantures on change.org petition]
25 verified sigantures on change.org petition
PDF

[Zoning Location Map version]
Zoning Location Map version
PDF

[I've always cherished the comfort and community spirit of our Rocky Ford community, where my family and I have lived for years. But now, we are facing a new challenge....]
I’ve always cherished the comfort and community spirit of our Rocky Ford community, where my family and I have lived for years. But now, we are facing a new challenge….
PDF

[Page 12]
Page 12
PDF

[Page 13]
Page 13
PDF

[Page 14]
Page 14
PDF

[Page 15]
Page 15
PDF

[Page 16]
Page 16
PDF

[List of petition signers]
List of petition signers
PDF

[Zoning Location Map]
Zoning Location Map
PDF

[Future Development Map]
Future Development Map
PDF

[WRPDO Site Map]
WRPDO Site Map
PDF

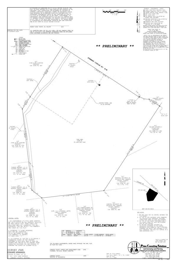
REZ-2025-15 Stewart Circle ~13.6ac, 3923, 4025 & 4051 Stewart Circle, C-C & R-1 to C-H, County Utilities

[to unify the zoning for the property to be developed with a mixture of commercial uses.]
to unify the zoning for the property to be developed with a mixture of commercial uses.
PDF

[RECOMMENDED ACTION: Approve]
RECOMMENDED ACTION: Approve
PDF

[SURVEY for Edward Jennings]
SURVEY for Edward Jennings
PDF

[Letter of Intent by Kevin Hollis]
Letter of Intent by Kevin Hollis
PDF

[Zoning Location Map]
Zoning Location Map
PDF

[Future Development Map]
Future Development Map
PDF

[WRPDO Site Map]
WRPDO Site Map
PDF

Lowndes County Responsible Dog Ownership Ordinance

[Approval of the attached ordinance will eliminate the need for the current citizen review board and move the hearing of these cases to Probate Court.]
Approval of the attached ordinance will eliminate the need for the current citizen review board and move the hearing of these cases to Probate Court.
PDF

[LOWNDES COUNTY RESPONSIBLE DOG OWNERSHIP ORDINANCE]
LOWNDES COUNTY RESPONSIBLE DOG OWNERSHIP ORDINANCE
PDF

[9. Dangerous Dog means any dog that:]
9. Dangerous Dog means any dog that:
PDF

[22. Pet animal means any domesticated animal commonly kept at a residence primarily for pleasure and companionship and not for work or utility purposes. Pet animals include dogs, domestic cats, domestic caged birds, canaries, parrots, rabbits, hamsters, guinea pigs and similar rodents, fish, and reptiles so long as such animals are not kept to supplement food supplies or for any commercial purpose. Pet animal does not include livestock or potbellied pigs.]
22. Pet animal means any domesticated animal commonly kept at a residence primarily for pleasure and companionship and not for work or utility purposes. Pet animals include dogs, domestic cats, domestic caged birds, canaries, parrots, rabbits, hamsters, guinea pigs and similar rodents, fish, and reptiles so long as such animals are not kept to supplement food supplies or for any commercial purpose. Pet animal does not include livestock or potbellied pigs.
PDF

[V. DESIGNATION OF DOG CONTROL OFFICER; CONSOLIDATION OF SERVICES; VI. RESPONSIBLE DOG OWNERSHIP]
V. DESIGNATION OF DOG CONTROL OFFICER; CONSOLIDATION OF SERVICES; VI. RESPONSIBLE DOG OWNERSHIP
PDF

[c. Notice of Classification to Owner and Owner Response]
c. Notice of Classification to Owner and Owner Response
PDF

[A. The Notice of Classification shall also include a form for the owner of the dog to]
A. The Notice of Classification shall also include a form for the owner of the dog to
PDF

[e. Probate Court Decision]
e. Probate Court Decision
PDF

[h. Certificates of Registration; Deadline for Obtaining; Requirements for Issuance of Certificate; Individuals Excluded from Receiving Registration; Limitation of Ownership; Annual Renewal; Revocation; Temporary Certificates of Registration]
h. Certificates of Registration; Deadline for Obtaining; Requirements for Issuance of Certificate; Individuals Excluded from Receiving Registration; Limitation of Ownership; Annual Renewal; Revocation; Temporary Certificates of Registration
PDF

[5. Except as provided in this subsection or unless otherwise specified by this Ordinance, a Certificate of Registration for a vicious dog shall be issued if the Dog Control Officer determines that the following requirements have been met:]
5. Except as provided in this subsection or unless otherwise specified by this Ordinance, a Certificate of Registration for a vicious dog shall be issued if the Dog Control Officer determines that the following requirements have been met:
PDF

[6. No Certificate of Registration for a classified dog shall be issued to any person who....]
6. No Certificate of Registration for a classified dog shall be issued to any person who….
PDF

[i. Notifications by Owner; Change in Ownership of Dog; Changes in Residence]
i. Notifications by Owner; Change in Ownership of Dog; Changes in Residence
PDF

[j. Limitations on Classified Dog’s Presence Outside the Secure Enclosure; Defense]
j. Limitations on Classified Dog’s Presence Outside the Secure Enclosure; Defense
PDF

[VII. INVESTIGATIONS; ENFORCEMENT; INTERFERENCE, VIII. VIOLATIONS AND PENALTIES]
VII. INVESTIGATIONS; ENFORCEMENT; INTERFERENCE, VIII. VIOLATIONS AND PENALTIES
PDF

[IX. FEES, X. REMEDIES, XI. SEVERABILITY]
IX. FEES, X. REMEDIES, XI. SEVERABILITY
PDF

[XII. REPEALER, SO ADOPTED]
XII. REPEALER, SO ADOPTED
PDF

Purchase of Wetland Credits for Twin Lakes Road Paving Project

[BUDGET IMPACT: $54,400.00 FUNDING SOURCE: (xX) TSPLOST]
BUDGET IMPACT: $54,400.00 FUNDING SOURCE: (xX) TSPLOST
PDF

[Invoice for $54,400 from Williams Investments Company]
Invoice for $54,400 from Williams Investments Company
PDF

[Map: Wetland Impact Area, Twin Lakes Road, Paving Improvements]
Map: Wetland Impact Area, Twin Lakes Road, Paving Improvements
PDF

[CENTERLINE AND RIGHT OF WAY PLANS]
CENTERLINE AND RIGHT OF WAY PLANS
PDF

[GENERAL NOTES]
GENERAL NOTES
PDF

[GENERAL SITE MAP]
GENERAL SITE MAP
PDF

[EXISTING CONDITIONS & DEMOLITION PLAN]
EXISTING CONDITIONS & DEMOLITION PLAN
PDF

Agreement for PI No. 0015614 CR 136/Old Quitman Road

[The Georgia Department of Transportation (GDOT) is proposing to replace the CR 136/Old Quitman Bridge over the tracks of CSX Transportation.]
The Georgia Department of Transportation (GDOT) is proposing to replace the CR 136/Old Quitman Bridge over the tracks of CSX Transportation.
PDF

[Department 1D:4848010000 RAILROAD CONSTRUCTION AGREEMENT]
Department 1D:4848010000 RAILROAD CONSTRUCTION AGREEMENT
PDF

[Page 53]
Page 53
PDF

[Page 54]
Page 54
PDF

[Page 55]
Page 55
PDF

[Page 56]
Page 56
PDF

[Page 57]
Page 57
PDF

[IN WITNESS WHEREOF: CSX & GDOT]
IN WITNESS WHEREOF: CSX & GDOT
PDF

[IN WITNESS WHEREOF: Lowndes County]
IN WITNESS WHEREOF: Lowndes County
PDF

[RESOLUTION]
RESOLUTION
PDF

[CSX GEORGIA SECURITY AND IMMIGRATION COMPLIANCE ACT AFFIDAVIT]
CSX GEORGIA SECURITY AND IMMIGRATION COMPLIANCE ACT AFFIDAVIT
PDF

[Lowndes County GEORGIA SECURITY AND IMMIGRATION COMPLIANCE ACT AFFIDAVIT]
Lowndes County GEORGIA SECURITY AND IMMIGRATION COMPLIANCE ACT AFFIDAVIT
PDF

[GDOT Cost Estimate to be paid by GDOT]
GDOT Cost Estimate to be paid by GDOT
PDF

[Page 64]
Page 64
PDF

[Page 65]
Page 65
PDF

[Page 66]
Page 66
PDF

[ESTIMATE OF ENGINEERING FEES]
ESTIMATE OF ENGINEERING FEES
PDF

[CSX Letter of Justification for $5M & $10M RPL Insurance]
CSX Letter of Justification for $5M & $10M RPL Insurance
PDF

[CSX Increased Railroad Protective Liability Insurance Limits]
CSX Increased Railroad Protective Liability Insurance Limits
PDF

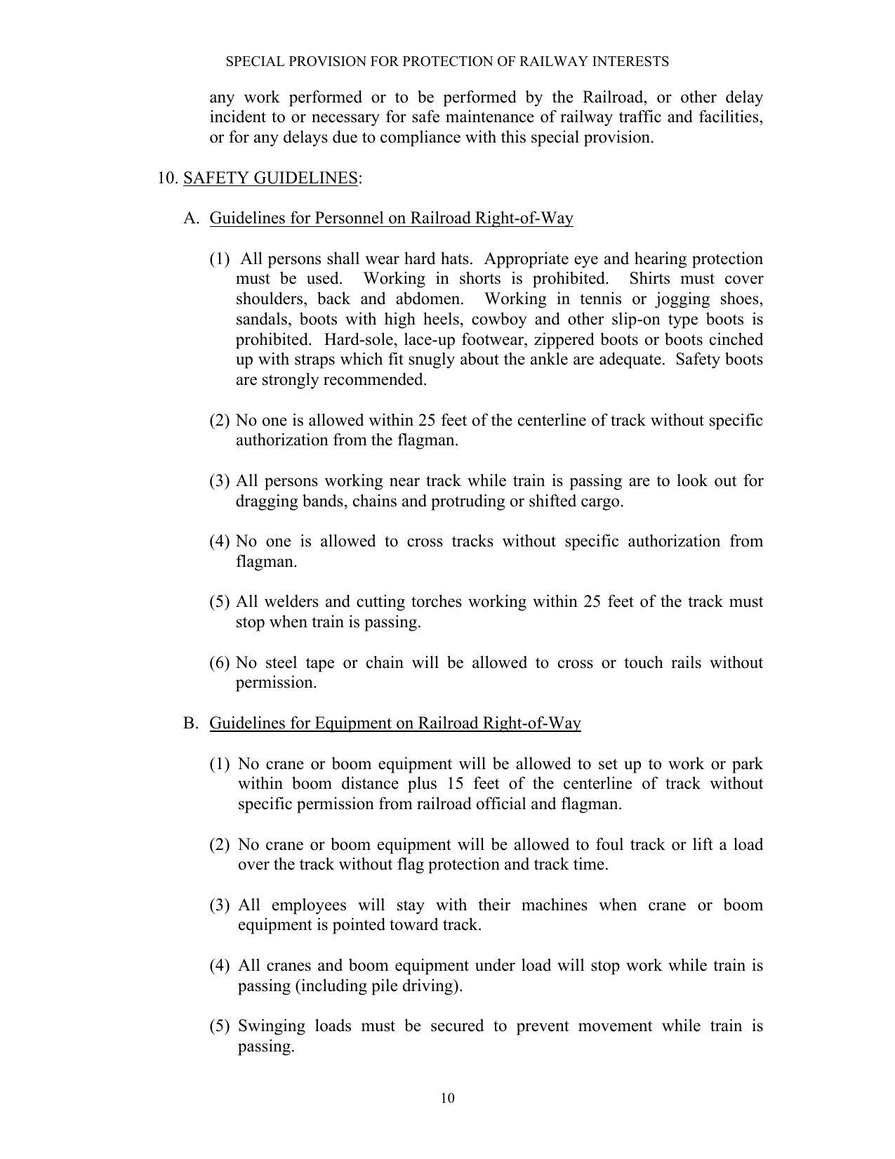
[GDOT SPECIAL PROVISION FOR PROTECTION OF RAILWAY INTERESTS]
GDOT SPECIAL PROVISION FOR PROTECTION OF RAILWAY INTERESTS
PDF

[Page 71]
Page 71
PDF

[Page 72]
Page 72
PDF

[Page 73]
Page 73
PDF

[Page 74]
Page 74
PDF

[Page 75]
Page 75
PDF

[Page 76]
Page 76
PDF

[Page 77]
Page 77
PDF

[Page 78]
Page 78
PDF

[Page 79]
Page 79
PDF

[Page 80]
Page 80
PDF

[Page 81]
Page 81
PDF

[INSURANCE REQUIREMENTS]
INSURANCE REQUIREMENTS
PDF

[Certificates of Insurance and all notices and correspondence regarding the insurance]
Certificates of Insurance and all notices and correspondence regarding the insurance
PDF

[SPECIAL PROVISION Section 205—Roadway Excavation]
SPECIAL PROVISION Section 205—Roadway Excavation
PDF

[GDOT SUBJECT: Agreement for Signature]
GDOT SUBJECT: Agreement for Signature
PDF

[Page 86]
Page 86
PDF

Acceptance of Infrastructure for The Landings Phase IV

[The Landings Phase IV is located off of Val Del Road and includes 52 residential lots. All construction and paperwork have been completed. Engineering and Utilities staff have conducted the final inspection of the construction. The developer has requested Lowndes County to accept the infrastructure, which includes the roads and right of ways, stormwater infrastructure, and utilities infrastructure.]
The Landings Phase IV is located off of Val Del Road and includes 52 residential lots. All construction and paperwork have been completed. Engineering and Utilities staff have conducted the final inspection of the construction. The developer has requested Lowndes County to accept the infrastructure, which includes the roads and right of ways, stormwater infrastructure, and utilities infrastructure.
PDF

[SUBDIVISION PLAT FOR: THE LANDINGS SUBDIVISION PHASE 4]
SUBDIVISION PLAT FOR: THE LANDINGS SUBDIVISION PHASE 4
PDF

[RESOLUTION NOW, THEREFORE BE IT RESOLVED, the Board of Commissioners of Lowndes County has agreed to accept The Landings Phase IV infrastructure as county maintained with a speed limit of 25 mph on this date as shown:]
RESOLUTION NOW, THEREFORE BE IT RESOLVED, the Board of Commissioners of Lowndes County has agreed to accept The Landings Phase IV infrastructure as county maintained with a speed limit of 25 mph on this date as shown:
PDF

September-22-2025-Work-Session-Minutes

[Page 1]
Page 1
PDF

[ADJOURNMENT]
ADJOURNMENT
PDF

September-23-2025-Regular-Session-Minutes

[Page 1]
Page 1
PDF

[questions to the Commission: Where will the displaced families go once GEMA housing assistance]
questions to the Commission: Where will the displaced families go once GEMA housing assistance
PDF

One thought on “Packet: Rezonings, Dogs, Roads, and Subdivisions @ LCC 2025-10-13

  1. Pingback: Videos: 1 Complicated Lowndes County case, 1 easy, 1 Lake Park, 6 Valdosta @ GLPC 2025-08-25 | On the LAKE front

Leave a Reply

Your email address will not be published. Required fields are marked *