Received in response to a LAKE open records request, the board packet materials for Monday’s Greater Lowndes Planning Commission meeting are on the LAKE website with images below.
Collage @ GLPC Packet 2026-02-23
The delay, once again, was because I didn’t send the Georgia Open Records Act (GORA) request until yesterday.
Although if the Lowndes County would put the board packet on lowndescounty.com, nobody would have to play open records tag.
Apparently two Planning Commissioners during the meeting said they got these materials late or not at all. So putting them on the county’s own website would let anyone pick them up, even Planning Commissioners.
See also the agenda and the minutes of the previous GLPC meeting.
GLPC recommends. The Lowndes County Commission will decide these three rezonings on March 10, 2026.
Investigative reporting costs money, for open records requests, copying, web hosting, gasoline, and cameras, and with sufficient funds we can pay students to do further research. You can donate to LAKE today!
http://www.l-a-k-e.org/blog/donate
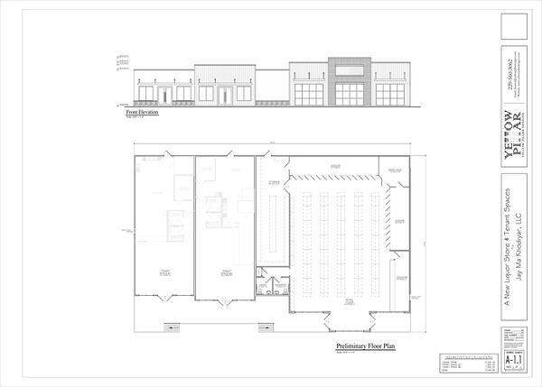
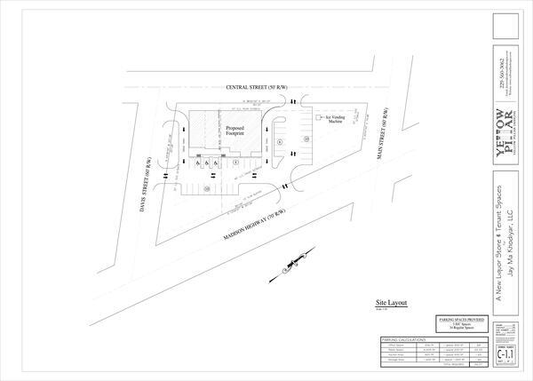
3. REZ-2026-04: VII7B, 5507 Central Street (Clyattville), 0095-022, ~1.03 acres
to allow for a proposed multi-tenant commercial development.
PDF
COMMERCIAL, OFFICE, AND INSTITUTIONAL ZONING DISTRICTS
PDF
Section 4-3. Disqualifications from Licensure.
PDF
Letter of Intent from Jay Ma Khodiyar
PDF
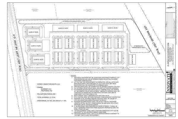
4. REZ-2026-05: 1925 Davis@84, U S Highway 84 West, 0059-090, ~21.7 acres
to allow for a proposed multi-tenant commercial development.
PDF
Letter of Intent from William D. Kent, PE
PDF
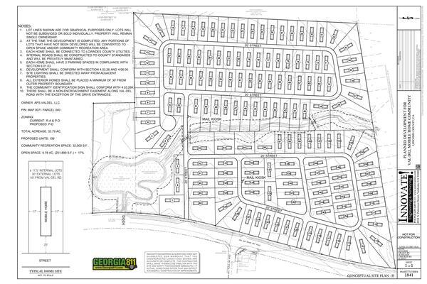
5. REZ-2026-06: Val Del Mobile Home, Val Del Road, 0071-040, ~33 acres
to unify a mobile home community that began in the 1970’s and expanded in the 1990’s. however, the applicant has requested to table this case until a more complete site plan can be prepared.
PDF
Letter of Intent from William D. Kent, PE
PDF
-jsq
Investigative reporting costs money, for open records requests, copying, web hosting, gasoline, and cameras, and with sufficient funds we can pay students to do further research. You can donate to LAKE today!
http://www.l-a-k-e.org/blog/donate
Short Link:
![[Page 03]](http://www.l-a-k-e.org/govt/glpc/2026-02-23--glpc-packet/REZ-2026-04-GLPC-Packet-0003.jpg)
![[Page 04]](http://www.l-a-k-e.org/govt/glpc/2026-02-23--glpc-packet/REZ-2026-04-GLPC-Packet-0004.jpg)
![[Page 05]](http://www.l-a-k-e.org/govt/glpc/2026-02-23--glpc-packet/REZ-2026-04-GLPC-Packet-0005.jpg)
![[Page 06]](http://www.l-a-k-e.org/govt/glpc/2026-02-23--glpc-packet/REZ-2026-04-GLPC-Packet-0006.jpg)
![[Page 07]](http://www.l-a-k-e.org/govt/glpc/2026-02-23--glpc-packet/REZ-2026-04-GLPC-Packet-0007.jpg)
![[Page 08]](http://www.l-a-k-e.org/govt/glpc/2026-02-23--glpc-packet/REZ-2026-04-GLPC-Packet-0008.jpg)
![[Map: Site Layout]](http://www.l-a-k-e.org/govt/glpc/2026-02-23--glpc-packet/REZ-2026-04-GLPC-Packet-0011.jpg)
![[Preliminary Floor Plan]](http://www.l-a-k-e.org/govt/glpc/2026-02-23--glpc-packet/REZ-2026-04-GLPC-Packet-0012.jpg)
![[Zoning Location Map]](http://www.l-a-k-e.org/govt/glpc/2026-02-23--glpc-packet/REZ-2026-04-GLPC-Packet-0013.jpg)
![[Future Development Map]](http://www.l-a-k-e.org/govt/glpc/2026-02-23--glpc-packet/REZ-2026-04-GLPC-Packet-0014.jpg)
![[WRPDO Map]](http://www.l-a-k-e.org/govt/glpc/2026-02-23--glpc-packet/REZ-2026-04-GLPC-Packet-0015.jpg)
![[Conceptual Layout]](http://www.l-a-k-e.org/govt/glpc/2026-02-23--glpc-packet/REZ-2026-05-GLPC-Packet-0003.jpg)
![[Zoning Location Map]](http://www.l-a-k-e.org/govt/glpc/2026-02-23--glpc-packet/REZ-2026-05-GLPC-Packet-0004.jpg)
![[Future Development Map]](http://www.l-a-k-e.org/govt/glpc/2026-02-23--glpc-packet/REZ-2026-05-GLPC-Packet-0005.jpg)
![[WRPDO Site Map]](http://www.l-a-k-e.org/govt/glpc/2026-02-23--glpc-packet/REZ-2026-05-GLPC-Packet-0006.jpg)
![[Conceptual Site Plan]](http://www.l-a-k-e.org/govt/glpc/2026-02-23--glpc-packet/REZ-2026-06-GLPC-Packet-0003.jpg)
![[Zoning Location Map]](http://www.l-a-k-e.org/govt/glpc/2026-02-23--glpc-packet/REZ-2026-06-GLPC-Packet-0004.jpg)
![[Future Development Map]](http://www.l-a-k-e.org/govt/glpc/2026-02-23--glpc-packet/REZ-2026-06-GLPC-Packet-0005.jpg)
![[WRPDO Map]](http://www.l-a-k-e.org/govt/glpc/2026-02-23--glpc-packet/REZ-2026-06-GLPC-Packet-0006.jpg)
Pingback: Videos: 3 Lowndes County rezonings, one recommended against @ GLPC 2026-02-23 | On the LAKE front