Lowndes Area Knowledge Exchange (LAKE)
Proposed Deviations from “standard development regulations”
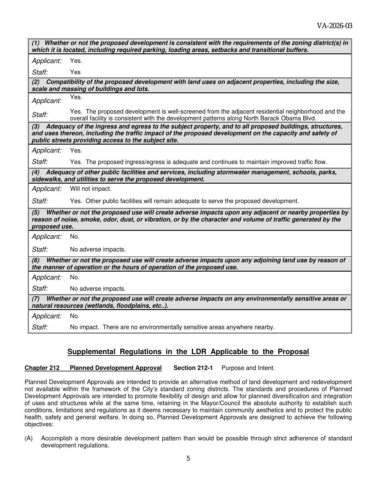
7. VA-2026-03 Jonathan Irvin, an amended Planned Development approval
Packet: 1 Lake Park, 2 Lowndes County, 4 Valdosta @ GLPC
27 April 2026
smaller
PDF
Photographs
by
Lowndes Area Knowledge Exchange (LAKE)
,
licensed by a
Creative Commons Attribution-Share Alike 3.0 U.S. License
.
Lowndes Area Knowledge Exchange (LAKE)