Lowndes Area Knowledge Exchange (LAKE)

[prev][index][next] [index to photographs]

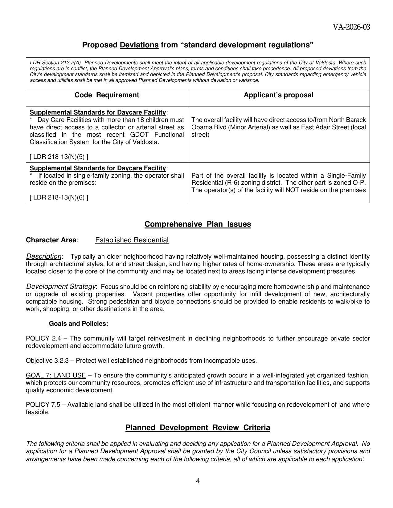
Proposed Deviations from “standard development regulations”

7. VA-2026-03 Jonathan Irvin, an amended Planned Development approval
Packet: 1 Lake Park, 2 Lowndes County, 4 Valdosta @ GLPC
27 April 2026

 
Proposed Deviations from “standard development regulations”
smaller PDF