Lowndes Area Knowledge Exchange (LAKE)
Survey: Proposed Building
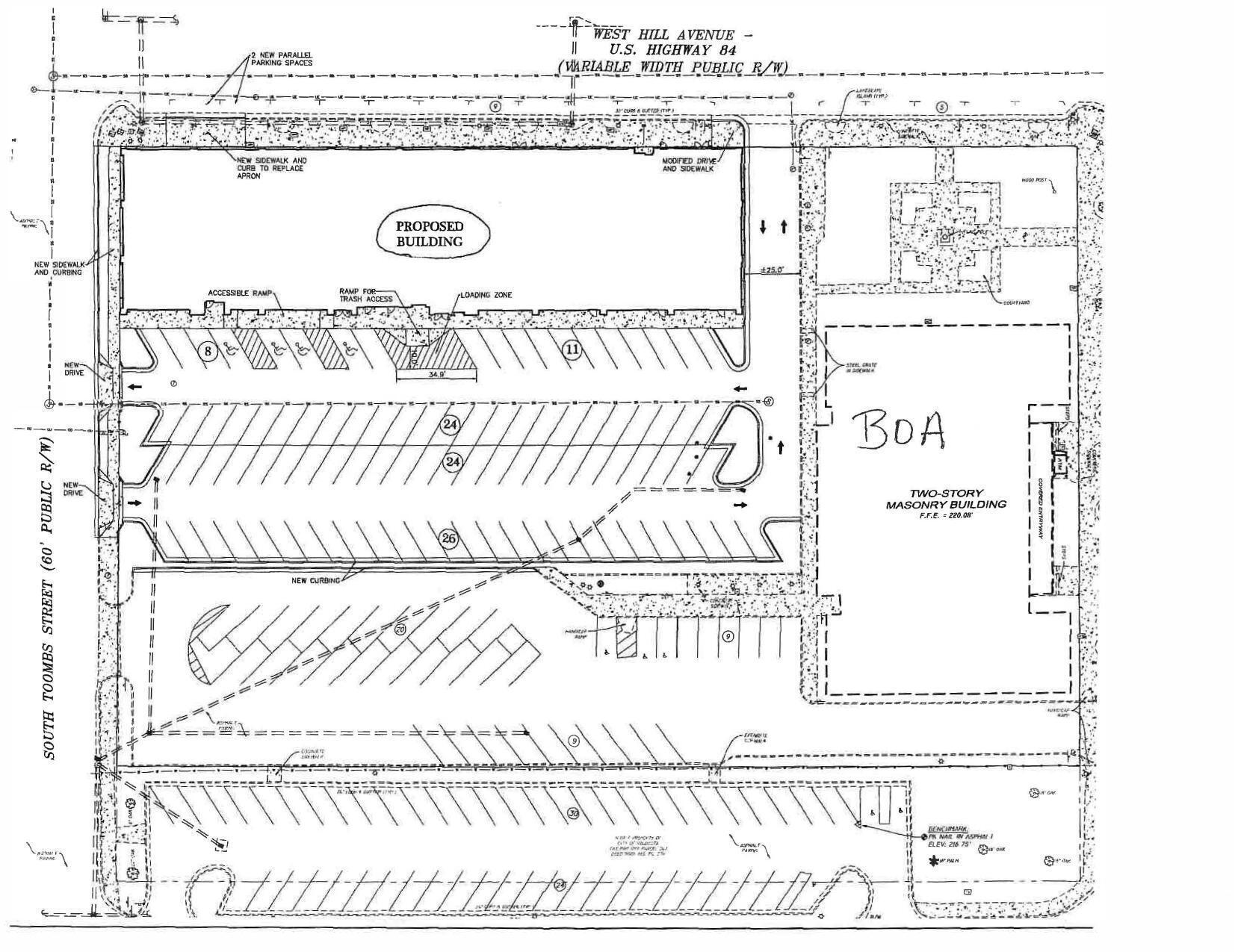
CU-2026-01, Daniel Bayman, 1.25 acres, 111 West Hill Avenue
Packet: Valdosta downtown multi-family residential development and office and storage in Lowndes County @ GLPC
26 January 2026
smaller
PDF
Photographs
by
Lowndes Area Knowledge Exchange (LAKE)
,
licensed by a
Creative Commons Attribution-Share Alike 3.0 U.S. License
.
Lowndes Area Knowledge Exchange (LAKE)