Lowndes Area Knowledge Exchange (LAKE)
Page 45
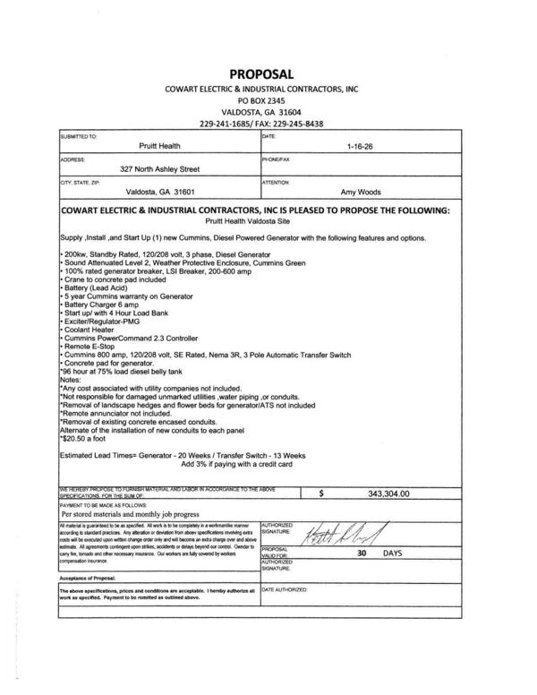
Consideration of Bids for Installation of Emergency Backup Generators at Pruitt Health Facilities
Packet: 3 rezonings, 1 Utility Easement Termination, Orr Road Bids, Backup Generators for Pruitt Health Facilities @ LCC
9 February 2026
bigger
PDF
Photographs
by
Lowndes Area Knowledge Exchange (LAKE)
,
licensed by a
Creative Commons Attribution-Share Alike 3.0 U.S. License
.
Lowndes Area Knowledge Exchange (LAKE)