Lowndes Area Knowledge Exchange (LAKE)
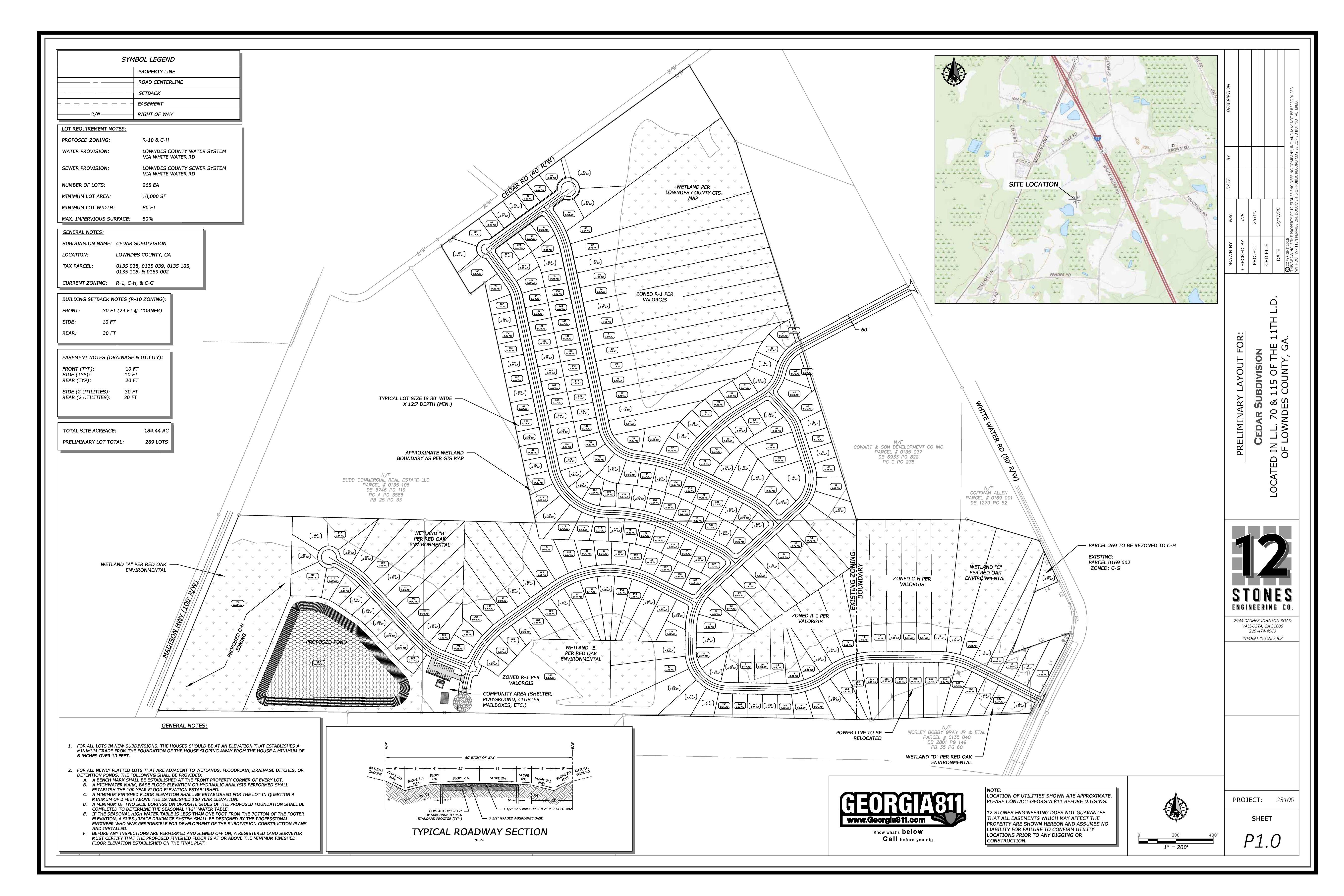
Preliminary Layout for: Cedar Subdivision
3. REZ-2026-08 Cedar Subdivision, Whitewater Road, 184 acres
Packet: Lake Laurie Drive case withdrawn, another Valdosta case, 2 county cases @ GLPC
30 March 2026
smaller
PDF
Photographs
by
Lowndes Area Knowledge Exchange (LAKE)
,
licensed by a
Creative Commons Attribution-Share Alike 3.0 U.S. License
.
Lowndes Area Knowledge Exchange (LAKE)