Lowndes Area Knowledge Exchange (LAKE)
AGL rezoning map
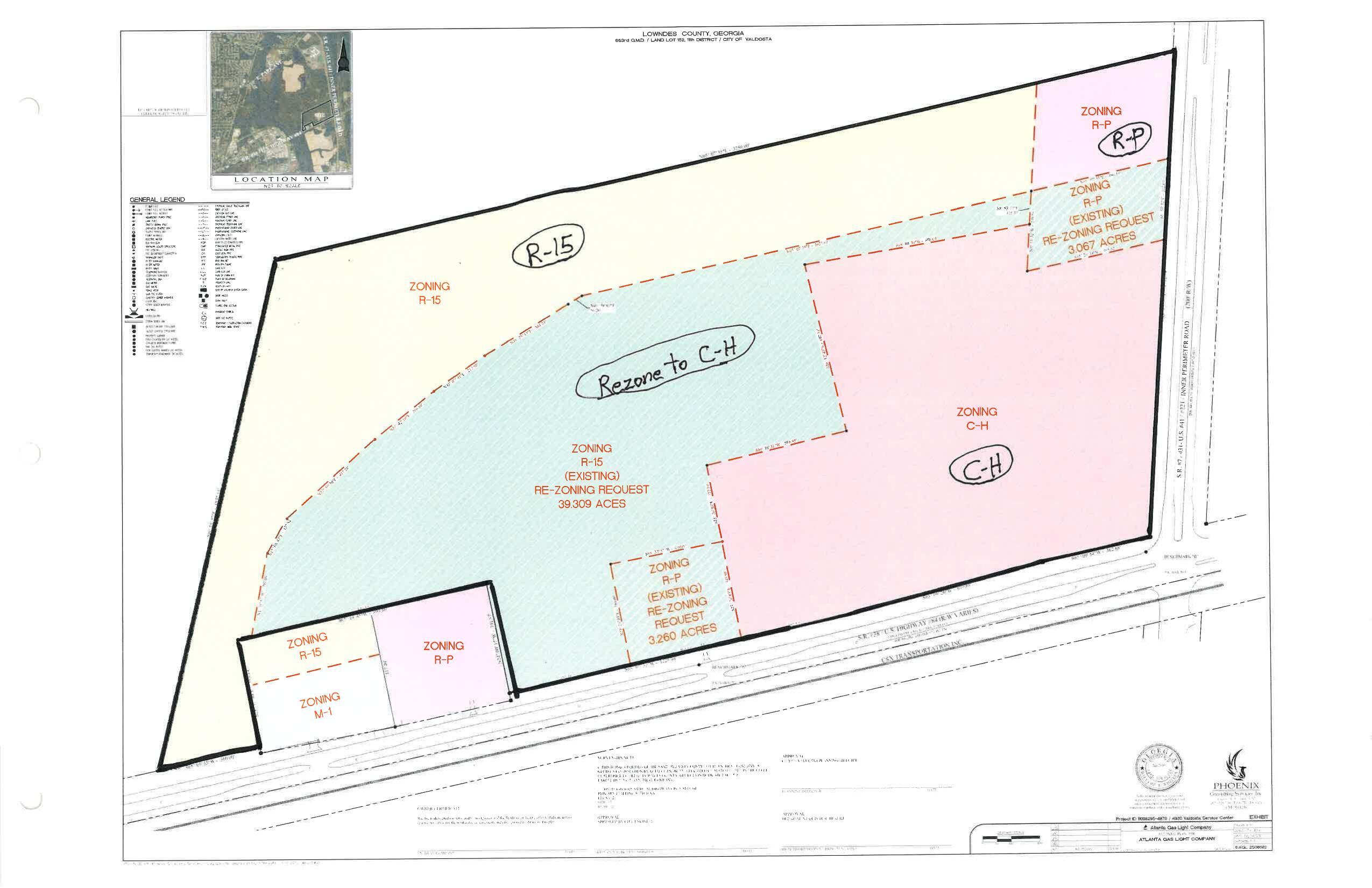
4. VA-2025-13 Atlanta Gas Light (AGL) NW Corner of Inner Perimeter & GA Hwy 84 E, 45.64 acres R-15 & R-P to C-H
Packet: Valdosta Mobile home CUP, AGL tank farm, DR-10 to R-P, and a county E-A to R-A @ GLPC
24 November 2025
smaller
PDF
Photographs
by
Lowndes Area Knowledge Exchange (LAKE)
,
licensed by a
Creative Commons Attribution-Share Alike 3.0 U.S. License
.
Lowndes Area Knowledge Exchange (LAKE)