Lowndes Area Knowledge Exchange (LAKE)
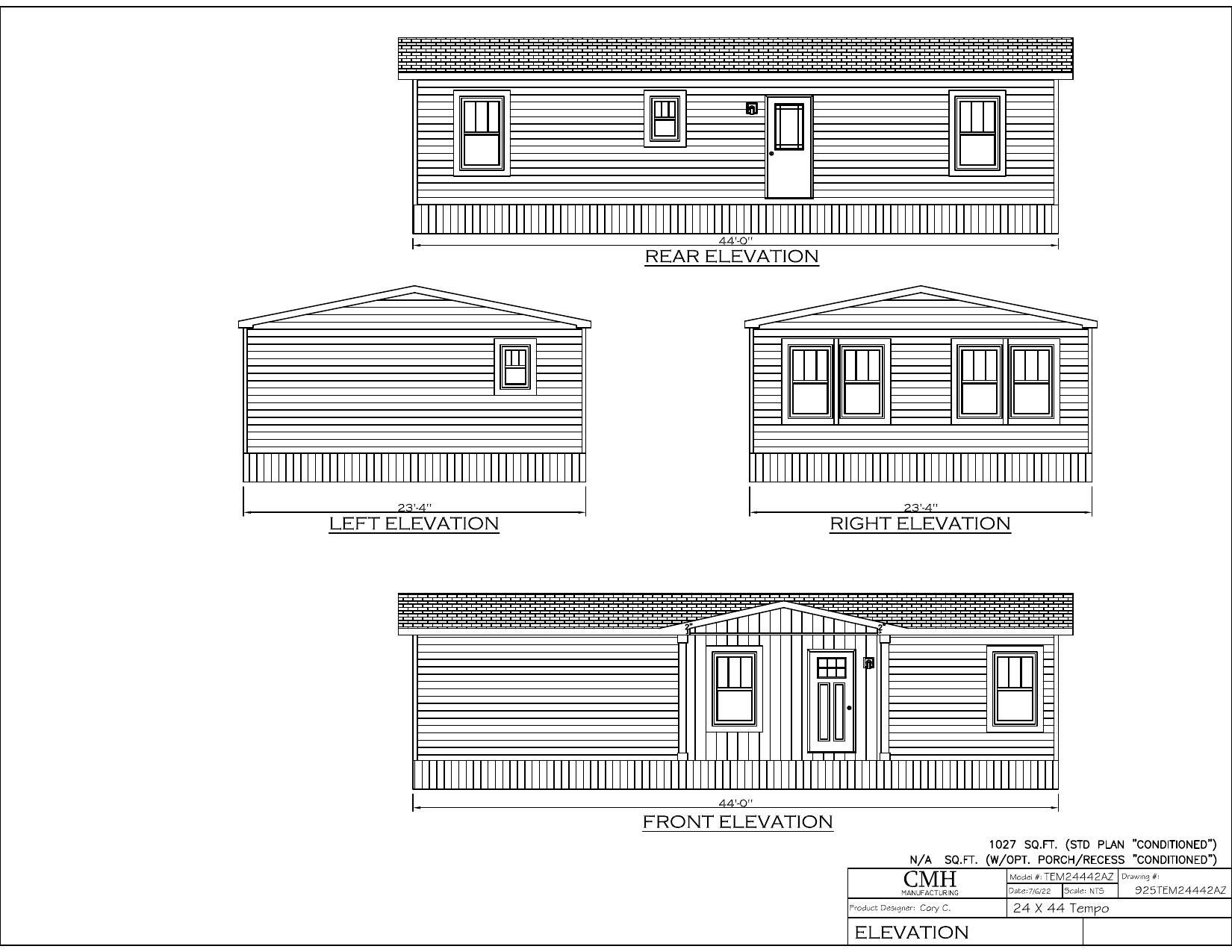
Elevations
3. CU-2025-09 Mary Pierce 809 ½ Nardo Street, CUP for mobile home in R-6
Packet: Valdosta Mobile home CUP, AGL tank farm, DR-10 to R-P, and a county E-A to R-A @ GLPC
24 November 2025
smaller
PDF
Photographs
by
Lowndes Area Knowledge Exchange (LAKE)
,
licensed by a
Creative Commons Attribution-Share Alike 3.0 U.S. License
.
Lowndes Area Knowledge Exchange (LAKE)