Lowndes Area Knowledge Exchange (LAKE)
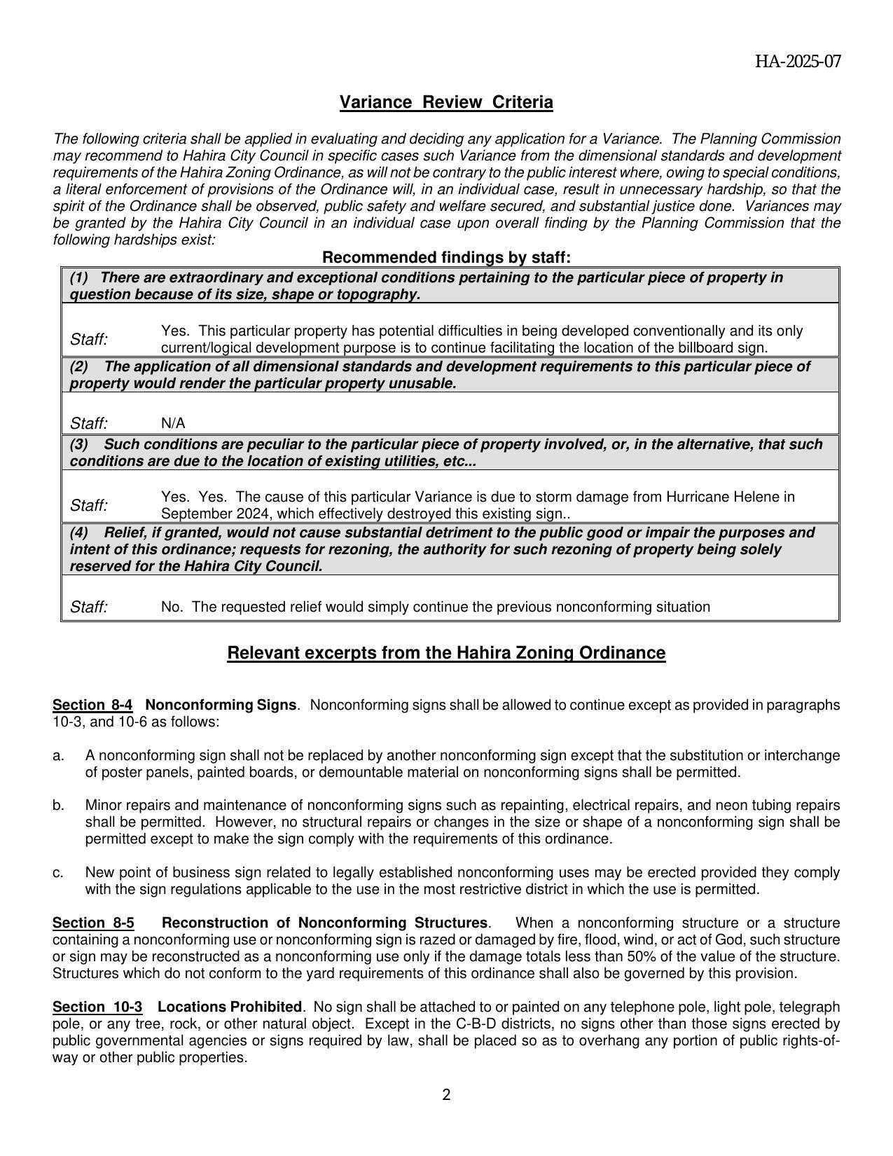
Variance Review Criteria
8. HA-2025-07
Packet: 1 County, 4 Valdosta, 1 Hahira @ GLPC
27 October 2025
smaller
PDF
Photographs
by
Lowndes Area Knowledge Exchange (LAKE)
,
licensed by a
Creative Commons Attribution-Share Alike 3.0 U.S. License
.
Lowndes Area Knowledge Exchange (LAKE)