Lowndes Area Knowledge Exchange (LAKE)
Comprehensive Plan Issues
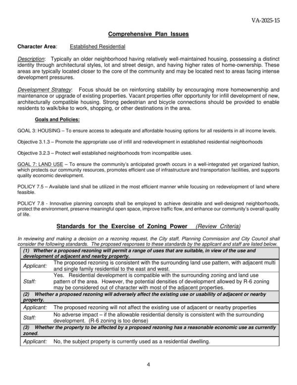
7. VA-2025-15
Packet: 1 County, 4 Valdosta, 1 Hahira @ GLPC
27 October 2025
bigger
PDF
Photographs
by
Lowndes Area Knowledge Exchange (LAKE)
,
licensed by a
Creative Commons Attribution-Share Alike 3.0 U.S. License
.
Lowndes Area Knowledge Exchange (LAKE)